Shëngjin

Projekte Bregdetare

Apartamente pranë detit

Zbrit

Rreth Projektit

Projekte Bregdetare në Shëngjin

Shëngjin — Investimi juaj pranë detit Adriatik

Shëngjini është një nga destinacionet më të kërkuara bregdetare në Shqipëri, i njohur për plazhet e bukura me rërë të artë dhe ujërat kristal të detit Adriatik. Sergio Construction SH.P.K sjell projekte të reja banimi në këtë zonë të privilegjuar, duke ofruar apartamente me pamje të mrekullueshme drejt detit.

Projektet tona bregdetare kombinojnë arkitekturën moderne me cilësinë e lartë të ndërtimit, duke krijuar ambiente të përsosura për banim të përhershëm ose pushime verore.

Me zhvillimin e vazhdueshëm të turizmit në rajon dhe rritjen e vlerës së pronave bregdetare, investimi në Shëngjin përfaqëson një mundësi të shkëlqyer si për banim ashtu edhe për kthim financiar.

3Projekte
50+Apartamente
200mNga Deti
5★Cilësi Premium

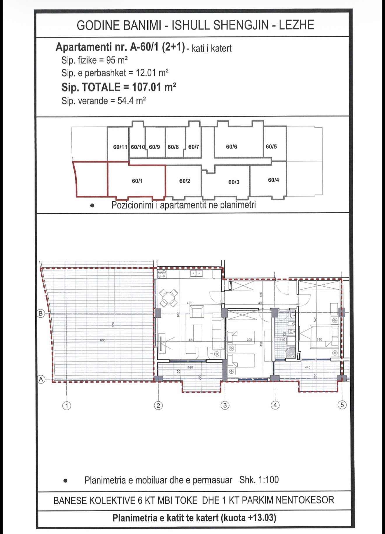
Apartamente

Apartamente Bregdetare

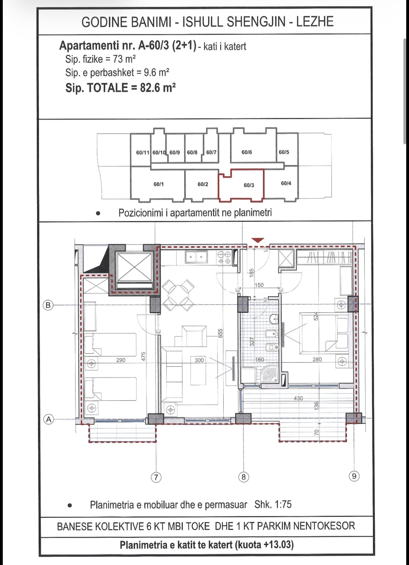
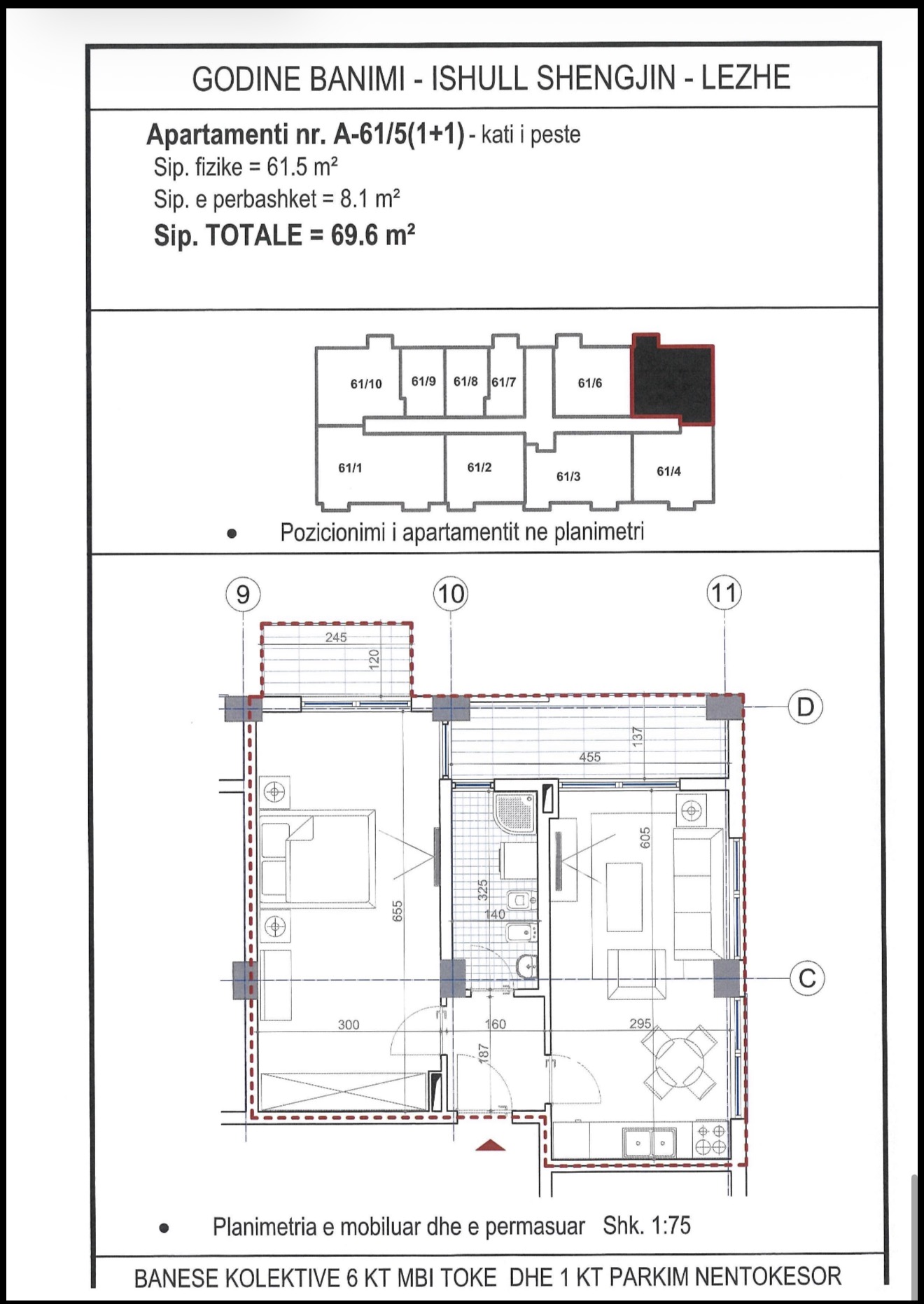
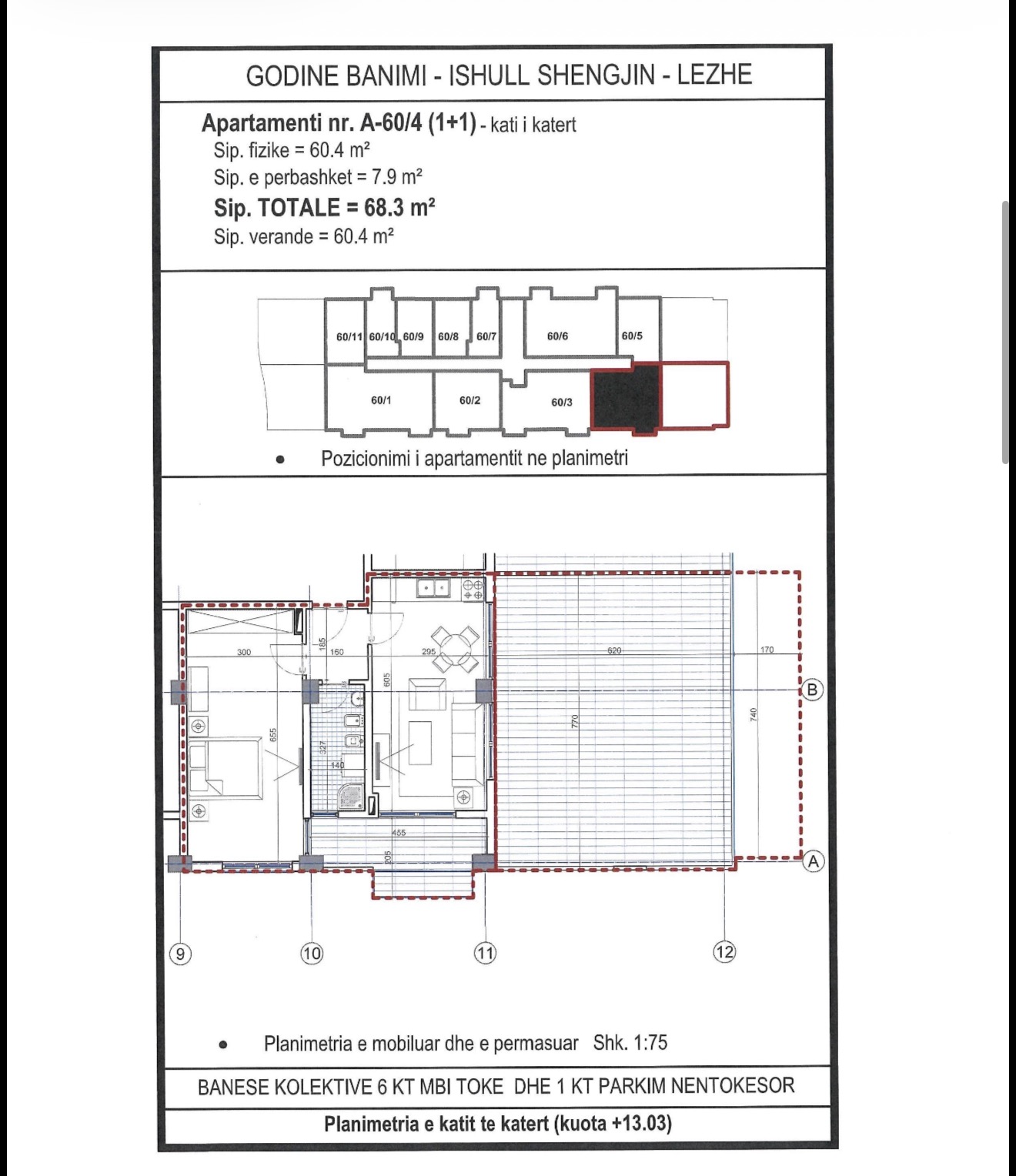
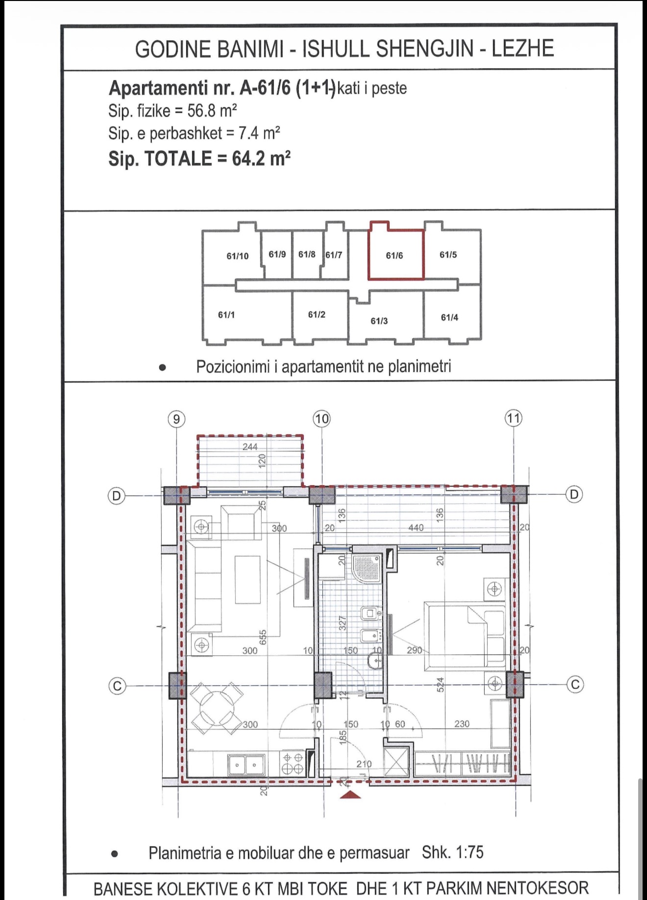
Klikoni mbi planimetrinë për ta parë në ekran të plotë

Pamje 3D

Pamje 3D të Projektit

Klikoni mbi imazhin për ta parë në ekran të plotë

Kontakt

Na Kontaktoni

Jeni të interesuar? Na shkruani ose na telefononi.

Lokacioni

Projekte Bregdetare
Shëngjin, Lezhë, Shqipëri